Fazenda em Esmeraldas – Minas Gerais
Esmeraldas - MG
Descrição
-
Descrição:
🌾 Fazenda à Venda em Esmeraldas – MG
Fazenda com Excelente Localização em Área de Expansão Urbana e Forte Potencial de Valorização
Excelente fazenda localizada na região de Melo Viana, município de Esmeraldas, Minas Gerais, em área estratégica e com forte potencial de valorização e expansão urbana.
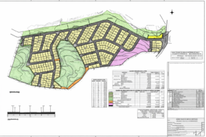
A propriedade possui 210 hectares de área total, sendo que parte dessa área já conta com projeto e licenciamento aprovados para loteamento, incluindo croqui e planejamento urbanístico, representando uma excelente oportunidade para investidores e empreendedores do setor imobiliário.
Essa área destinada ao desenvolvimento urbano já está preparada para implantação de loteamento residencial, e a propriedade ainda possui extensão suficiente para novos projetos, possibilitando a obtenção de novos licenciamentos e ampliações futuras conforme interesse do comprador.
A fazenda está situada a aproximadamente 28 km do Ceasa, com acesso pela BR-040, estando a cerca de 4,5 km da rodovia, o que proporciona fácil acesso e excelente logística, além de estar inserida em região em crescimento e valorização imobiliária.
📐 Área da Propriedade
Área total: 210 hectares
Área com projeto aprovado para loteamento: 23,72 hectares💧 Recursos Hídricos
A propriedade apresenta excelente disponibilidade de água, fator fundamental para produção rural e valorização patrimonial.
✔️Recursos existentes:
●04 açudes
●Córregos na propriedade
●Nascentes naturais
●Boa disponibilidade de água durante todo o ano🏗️ Estrutura e Benfeitorias
A fazenda conta com estrutura completa e funcional para atividade pecuária, permitindo operação imediata.
✔️Benfeitorias e instalações:
●Galpão com estrutura metálica e cobertura em alumínio
●Baias para cavalos
●Sala de ordenha
●Sala de máquinas
●Escritório
●Sala de atendimento veterinário
●Paiol e almoxarifado
●Bezerreiras individuais
●Estrutura coberta para coxos
●84 coxos individuais para confinamento
●Bebedouros distribuídos
●Pátio cimentado em concreto
●Caixa d’água com capacidade aproximada de 130.000 litros
●Curral completo em aroeira e cordoalha de aço
●Tronco, brete e apartadores
●Balança com capacidade para 1.500 kg🐄 Aptidão da Propriedade
A fazenda apresenta perfil altamente versátil, podendo atender tanto ao setor produtivo quanto ao setor imobiliário.
✔️Principais aptidões:
●Pecuária de corte
●Pecuária leiteira
●Confinamento e recria
●Agricultura e produção de forragem
●Investimento imobiliário
●Loteamento residencial
●Expansão urbana
●Empreendimento rural ou urbanoTrata-se de uma propriedade diferenciada, localizada em região de crescimento e valorização constante, reunindo estrutura produtiva, excelente disponibilidade de água e forte vocação para desenvolvimento urbano.
Uma excelente oportunidade para produtores, investidores e empreendedores que buscam uma área estratégica, com potencial imediato de exploração rural e amplas possibilidades de expansão imobiliária no futuro.
💰Valores:
Mostrar +
○Valor da Fazenda (210 ha) R$16.800.000,00
○Valor somente da área destinada ao loteamento (23,7 ha) R$6.500.000,00